


| 賃料 | 総額180,000円 (坪単価9,000円) |
|---|---|
| 共益費 | 賃料に含む |
| 合計賃料 | 総額180,000円 |
| 預託金 | 総額540,000円 (坪単価 27,000円) (総額540,000円) |
| 入居可能日 | 相談 |
| 物件名 | 高橋(栄) (ビルコード:88709) |
|---|---|
| 構造 | 鉄筋コンクリート造 |
| 規模 | 地上3階建 |
| 竣工 | 1989年 (新耐震基準ビル) |
| 募集階数 | 3階 |
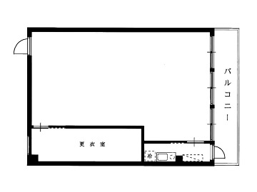
| 面積 | 20.00坪 |
| 所在地 |
|
| 交通・アクセス | |
| 備考 | |
| 最終確認日 | 2026/04/21 |
天高 -
賃料・共益費・合計賃料には別途消費税がかかります。
募集状況は常時変動しているため、お問い合わせを頂いた時点でご紹介できない場合がございます。
フロアによって設備に違いがある場合がございます。
フロア賃料・ビル設備を含め賃貸借条件は貸主の事情により変更されている場合がございます。予めご了承下さい。
駅から徒歩5分、富士見通りに面した物件です。事務所はもちろん、各種教室、整体治療院等にも適しています。