


| 賃料 | 相談 |
|---|---|
| 共益費 | 相談 |
| 合計賃料 | 相談 |
| 預託金 | 相談 |
| 入居可能日 | 2026年10月 |
| 物件名 | FRAME日本橋 (ビルコード:106) |
|---|---|
| 構造 | 鉄骨鉄筋コンクリート造 |
| 規模 | 地下1階地上9階建 |
| エレベーター | 2基 |
| 竣工 | 1989年07月 (新耐震基準ビル) |
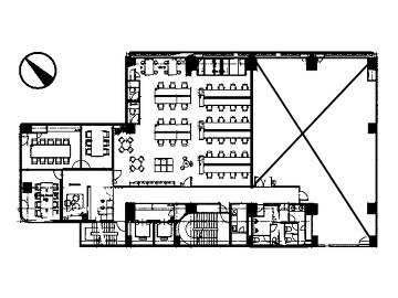
| 募集階数 | 7階 |
| 面積 | 83.78坪 |
| 所在地 | |
| 交通・アクセス |
|
| 備考 | |
| 最終確認日 | 2026/04/24 |
天高2520mm
賃料・共益費・合計賃料には別途消費税がかかります。
募集状況は常時変動しているため、お問い合わせを頂いた時点でご紹介できない場合がございます。
フロアによって設備に違いがある場合がございます。
フロア賃料・ビル設備を含め賃貸借条件は貸主の事情により変更されている場合がございます。予めご了承下さい。
木目調の外観で大通りに面しており視認性の高いビルです。1フロアを4分割しており、どの区画も会議室が設置済みで、柱などが無い使いやすい間取りになります。共用部も大幅にリニューアルされているため、快適にご利用いただける空間となっております。