THE TERRACE TSUKIJI 1階 25.91坪の空室情報
賃貸条件
| 賃料 |
相談 |
| 共益費 |
相談 |
| 合計賃料 |
相談 |
| 預託金 |
相談
|
| 入居可能日 |
即日 |
物件概要
| 物件名 |
THE TERRACE TSUKIJI (ビルコード:155651) |
| 構造 |
鉄骨造 |
| 規模 |
地上7階建 |
| エレベーター |
2基 |
| 竣工 |
2008年04月 (新耐震基準ビル) |
| 募集階数 |
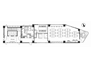
1階 |
| 面積 |
25.91坪 |
| 所在地 |
|
| 交通・アクセス |
|
| 備考 |
|
| 最終確認日 |
2026/03/06
|
設備
バーチャル内見 (3Dカメラ) (このビルの代表的なフロアの映像になります)
周辺地図
物件が表示サポートの外に存在している場合に、
最寄りの表示サポートの画像が表示されています。
他フロアの空き情報
| 階数 |
坪数 |
賃料(共益費込)/坪 |
入居可能日 |
間取り図 |
お気に入り |
| 2階 |
49.72坪 |
相談 |
即日 |
 |
|
| 2階 |
105.13坪 |
相談 |
即日 |
 |
|
| 2階 |
55.41坪 |
相談 |
即日 |
 |
|
| 4階 |
49.72坪 |
相談 |
即日 |
 |
|
| 5階 |
55.41坪 |
相談 |
即日 |
 |
|
| 7階 |
50.96坪 |
相談 |
即日 |
 |
|
賃料・共益費・合計賃料には別途消費税がかかります。
募集状況は常時変動しているため、お問い合わせを頂いた時点でご紹介できない場合がございます。
フロアによって設備に違いがある場合がございます。
フロア賃料・ビル設備を含め賃貸借条件は貸主の事情により変更されている場合がございます。予めご了承下さい。
東京メトロ日比谷線『築地』駅徒歩4分の好立地にある物件です会議室やテーブル、椅子も豊富にあり使い勝手が良いです。屋上では聖路加ガーデンなどが一望できます。