オーロラ三田ビル 8階 9.49坪の空室情報
オーロラ三田 8階 9.49坪
(ビルコード:55055)
賃貸条件
| 賃料 |
総額146,000円 (坪単価15,385円) |
| 共益費 |
総額14,000円 (坪単価1,475円) |
| 合計賃料 |
総額160,000円 |
| 預託金 |
賃料の3ヶ月分
(総額438,000円)
|
| 入居可能日 |
相談 |
物件概要
| 物件名 |
オーロラ三田 (ビルコード:55055) |
| 構造 |
鉄筋コンクリート造 |
| 規模 |
地上9階建 |
| エレベーター |
1基 |
| 竣工 |
1974年01月 |
| 募集階数 |
8階 |
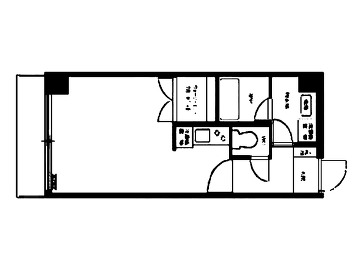
| 面積 |
9.49坪 |
| 所在地 |
|
| 交通・アクセス |
|
| 備考 |
|
| 最終確認日 |
2026/03/05
|
設備
周辺地図
物件が表示サポートの外に存在している場合に、
最寄りの表示サポートの画像が表示されています。
他フロアの空き情報
| 階数 |
坪数 |
賃料(共益費込)/坪 |
入居可能日 |
間取り図 |
お気に入り |
| 1階 |
19.50坪 |
31,500円/坪 |
相談 |
 |
|
| 3階 |
12.49坪 |
16,493円/坪 |
相談 |
 |
|
| 5階 |
8.89坪 |
16,873円/坪 |
相談 |
 |
|
| 9階 |
12.49坪 |
18,254円/坪 |
相談 |
 |
|
賃料・共益費・合計賃料には別途消費税がかかります。
募集状況は常時変動しているため、お問い合わせを頂いた時点でご紹介できない場合がございます。
フロアによって設備に違いがある場合がございます。
フロア賃料・ビル設備を含め賃貸借条件は貸主の事情により変更されている場合がございます。予めご了承下さい。