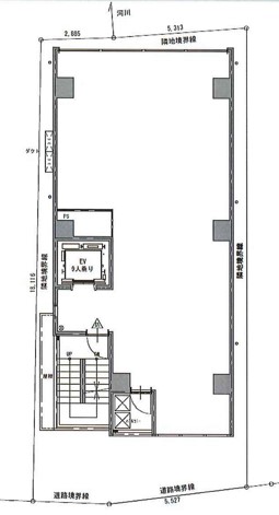
JR線では山手線、埼京線を利用することができ、その他も2路線利用することができるため、利便性の高い物件です。仕事に集中できる静かな周辺環境です。外観はコンクリート調となっており、グレード感の感じるビルです。内装は床が木目調となっており、天井はスケルトン仕様で開放感を感じられます。4名用の会議室があり、デスクも備え付けのものがございます。什器も備え付けられており、トイレは男女別トイレで給湯室も専用でございます。



お好みの居抜きオフィスが見つからなかった方はこちらから
リクエストをお送りください。
希望の条件からおすすめの居抜きオフィスをご紹介します。
居抜き物件としてINUKIT!に登録しておくと、原状回復費用をグッと抑えることが可能です。
まだ移転の時期でなくても、早期登録しておけば、移転のタイミングで借り手がすぐに見つかる可能性が高くなります。
ぜひ、あなたのオフィスを居抜き物件として登録してください!
物件に関するご質問はお気軽にご相談ください。
平日9:00~18:00