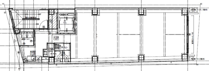
東京メトロ各線、JR各線、井の頭線など複数路線の計3駅利用可能で、アクセス面も非常に優秀なため通勤や外出の際にもとても便利です。大通り沿いに面しているため視認性も抜群で、ご来客の方々にも説明のしやすい立地となっております。貸室内は、各部コンパクトにまとまっており、非常に扱いやすいオフィス形態となっています。それでいて、窮屈さを感じさせない絶妙なバランスを保っているこの空間はとても居心地が良いです。



お好みの居抜きオフィスが見つからなかった方はこちらから
リクエストをお送りください。
希望の条件からおすすめの居抜きオフィスをご紹介します。
居抜き物件としてINUKIT!に登録しておくと、原状回復費用をグッと抑えることが可能です。
まだ移転の時期でなくても、早期登録しておけば、移転のタイミングで借り手がすぐに見つかる可能性が高くなります。
ぜひ、あなたのオフィスを居抜き物件として登録してください!
物件に関するご質問はお気軽にご相談ください。
平日9:00~18:00