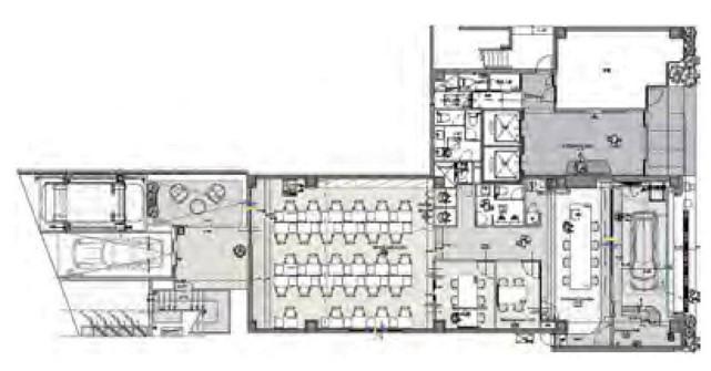
清州橋通り沿いにある物件で、最寄り駅は、JR総武快速『馬喰町駅』徒歩4分の駅近物件になります。他、JR山手線『秋葉原駅』から徒歩10分と両駅徒歩圏内なので、アクセスがとても良い物件になります。白基調の綺麗なビルで、デザイン性を重視した清潔感のある外観になっております。貸室内は、圧迫感が無いよう天井が高く4,000mmと高く開放感があり土間やキッチンもあるので、社員でのコミュニケーションなどが取りやすい遊び心がある新しいスタイルになっております。他、会議室等があり椅子やデスクが付随しておりますので初期費用が抑えられるのも特徴の一つになります。




お好みの居抜きオフィスが見つからなかった方はこちらから
リクエストをお送りください。
希望の条件からおすすめの居抜きオフィスをご紹介します。
居抜き物件としてINUKIT!に登録しておくと、原状回復費用をグッと抑えることが可能です。
まだ移転の時期でなくても、早期登録しておけば、移転のタイミングで借り手がすぐに見つかる可能性が高くなります。
ぜひ、あなたのオフィスを居抜き物件として登録してください!
物件に関するご質問はお気軽にご相談ください。
平日9:00~18:00