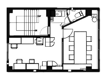
こちら物件は7駅10路線が利用可能で快適なアクセスが魅力的なセットアップオフィスです。最寄り駅から徒歩3分圏内なのは電車通勤者にとって嬉しいポイントです。内装は、コンパクトながらトイレや給湯スペースもあります。執務スペースと、6名用の会議室も設置があるので来客対応や社内ミーティングにも活用出来ます。また、会議室には便利なモニターが付いております。全体的に落ち着いた雰囲気漂うシックなテイストで集中して業務を進めることが出来るのではないでしょうか。周辺にはコンビニやカフェや安価な飲食店も多数あるためお財布にも優しいランチを楽しめます。




お好みの居抜きオフィスが見つからなかった方はこちらから
リクエストをお送りください。
希望の条件からおすすめの居抜きオフィスをご紹介します。
居抜き物件としてINUKIT!に登録しておくと、原状回復費用をグッと抑えることが可能です。
まだ移転の時期でなくても、早期登録しておけば、移転のタイミングで借り手がすぐに見つかる可能性が高くなります。
ぜひ、あなたのオフィスを居抜き物件として登録してください!
物件に関するご質問はお気軽にご相談ください。
平日9:00~18:00