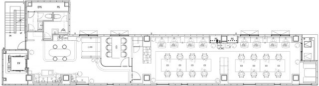
こちらのセットアップオフィスは、4駅4路線からご利用でき、最寄り駅からは徒歩2分圏内でアクセスすることができる、大変便利な立地にございます。長方形の貸室内は、ガラス張りの会議室、ラウンジスペースやデスクを確保しており、無駄のない快適なオフィス空間を作り出しております。OAフロア、個別空調、トイレも男女別のため清潔感があります。浅草橋エリアでセットアップオフィスをお探し方は、ぜひこちらをご検討ください。



お好みの居抜きオフィスが見つからなかった方はこちらから
リクエストをお送りください。
希望の条件からおすすめの居抜きオフィスをご紹介します。
居抜き物件としてINUKIT!に登録しておくと、原状回復費用をグッと抑えることが可能です。
まだ移転の時期でなくても、早期登録しておけば、移転のタイミングで借り手がすぐに見つかる可能性が高くなります。
ぜひ、あなたのオフィスを居抜き物件として登録してください!
物件に関するご質問はお気軽にご相談ください。
平日9:00~18:00