【銀座エリア】周辺環境良好☆外観がオシャレな居抜きオフィス

内装写真
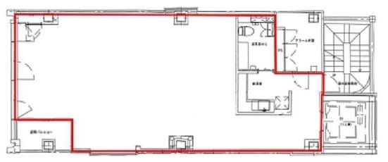
間取り図
地図
 
 
閲覧には会員登録が必要です
無料の会員登録ですぐにご覧になれます
エリア
東京都中央区
最寄り駅
山手線 新橋駅徒歩5分
京浜東北線 新橋駅徒歩5分
東海道本線 新橋駅徒歩5分
横須賀線 新橋駅徒歩5分
常磐線 新橋駅徒歩5分
銀座線 新橋駅徒歩5分
都営浅草線 新橋駅徒歩5分
ゆりかもめ 新橋駅徒歩5分
銀座線 銀座駅徒歩6分
丸ノ内線 銀座駅徒歩6分
日比谷線 銀座駅徒歩6分
坪数帯
20~30坪

物件説明

こちらの物件は2駅10路線が利用可能な居抜きオフィスです。ターミナル駅へのアクセスも快適な立地にある物件です。国道沿いに建っており、視認性が高いです。ガラス張りの外観は存在感があり、赤いラインが入った外壁が目を引きます。天高は2500㎜以上あり、開放感があります。近隣には、コンビニを始めドラッグストアや銀行、郵便局があり、周辺環境は良好です。周辺にカフェや飲食店も多いため、ランチやミーティングの際に便利です。

物件詳細情報

物件NoA-004693
住所東京都中央区
坪数帯20~30坪
推奨人数
募集期間募集終了
坪単価-
竣工年-
賃料-
共益費-
敷金-
会員限定で物件詳細を公開中
ログイン 新規会員登録

設備・条件

物件リクエスト

お好みの居抜きオフィスが見つからなかった方はこちらから
リクエストをお送りください。
希望の条件からおすすめの居抜きオフィスをご紹介します。

居抜きオフィスを検索

該当件数

移転する予定がなくてもOK 今のオフィスを物件登録しませんか?

居抜き物件としてINUKIT!に登録しておくと、原状回復費用をグッと抑えることが可能です。
まだ移転の時期でなくても、早期登録しておけば、移転のタイミングで借り手がすぐに見つかる可能性が高くなります。
ぜひ、あなたのオフィスを居抜き物件として登録してください!

CONTACT

物件に関するご質問はお気軽にご相談ください。

お電話でのお問い合わせはこちら
0120-997-260

平日9:00~18:00

メールでのお問い合わせはこちら
お問い合わせフォーム