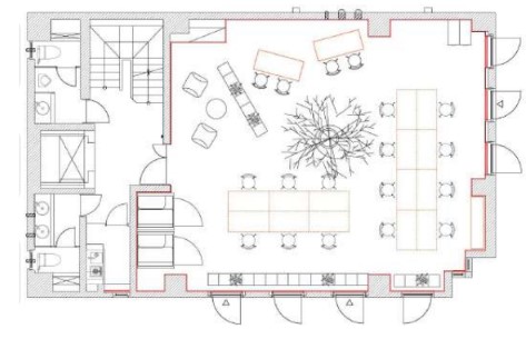
こちらのセットアップオフィス は、複数路線利用可能な 最寄り駅から徒歩3分圏内でアクセス良好な立地となっております。特に間仕切りなどで区切ってはいませんが、オフィス内で執務エリア、コミュニティーエリアが分かれている内装でメリハリをもって働くことが可能です。執務エリアは床面もダークな色で集中できる空間です。コミュニティーエリアは壁が全面ホワイトボード塗装で、社内でのプレストやミーティングに最適です。オフィス中央にはシンボルツリーがあり、企業と一緒に成長していくマスコット的存在です。


お好みの居抜きオフィスが見つからなかった方はこちらから
リクエストをお送りください。
希望の条件からおすすめの居抜きオフィスをご紹介します。
居抜き物件としてINUKIT!に登録しておくと、原状回復費用をグッと抑えることが可能です。
まだ移転の時期でなくても、早期登録しておけば、移転のタイミングで借り手がすぐに見つかる可能性が高くなります。
ぜひ、あなたのオフィスを居抜き物件として登録してください!
物件に関するご質問はお気軽にご相談ください。
平日9:00~18:00