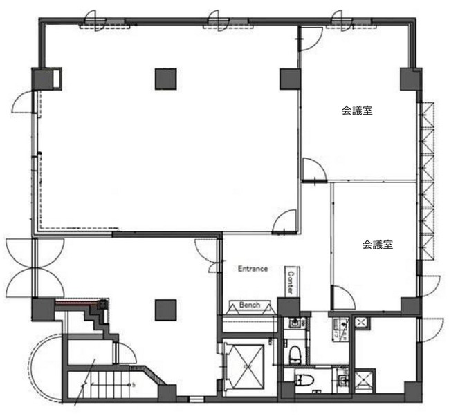
こちらのハーフセットアップオフィスは会議室2室(8名、6名)・パーティション・受付カウンターを備え付けております。落ち着いた色味のクロス等を用いることで高級感のある内装になっております。2020年に大規模な改修が施された、大理石調のエントランスが印象的です。設備はエレベーターが1基、OAフロア、個別空調、LED照明、男女別トイレ、機械警備があり、24時間使用可能となっております。また、複数駅・複数路線利用可能なため、アクセス良好です。ご興味ありましたら、ぜひご検討下さい!



お好みの居抜きオフィスが見つからなかった方はこちらから
リクエストをお送りください。
希望の条件からおすすめの居抜きオフィスをご紹介します。
居抜き物件としてINUKIT!に登録しておくと、原状回復費用をグッと抑えることが可能です。
まだ移転の時期でなくても、早期登録しておけば、移転のタイミングで借り手がすぐに見つかる可能性が高くなります。
ぜひ、あなたのオフィスを居抜き物件として登録してください!
物件に関するご質問はお気軽にご相談ください。
平日9:00~18:00