【赤坂エリア】周辺環境◎緑に囲まれたお洒落なセットアップオフィス

内装写真
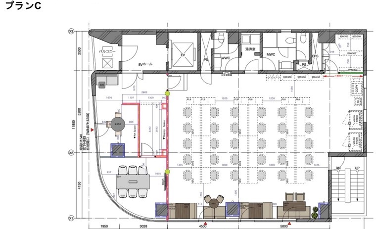
間取り図
地図
赤坂エリア セットアップオフィス
 
赤坂エリア セットアップオフィス
赤坂エリア セットアップオフィス
赤坂エリア セットアップオフィス
赤坂エリア セットアップオフィス
 
閲覧には会員登録が必要です
無料の会員登録ですぐにご覧になれます
エリア
東京都港区
最寄り駅
半蔵門線 青山一丁目駅徒歩5分
銀座線 青山一丁目駅徒歩6分
丸の内線 赤坂見附駅徒歩8分
坪数帯
50~60坪

物件説明

こちらの物件は会議室什器付きのセットアップオフィスです。会議室やフォンブースの追加設置のご相談も可能となっており、来客・打合せ等の多い企業様におすすめの物件になっております。眺望も大変よく、気持ちを落ち着かせてくれます!活気あるビジネスエリアの中心に位置し、周囲には多くの企業が集まっています。交流の機会が増えるだけでなく、パートナーやクライアントを招待する際にも、信頼感のあるエリアとして高く評価されています。近隣には緑が多いためランチ時には自然を満喫しながらを食事をとることができます。また、散歩をすればリフレッシュもできそうです。

物件詳細情報

物件NoA-006018
住所東京都港区
坪数帯50~60坪
推奨人数20~30人
募集期間ご成約まで
坪単価-
竣工年-
賃料-
共益費-
敷金-
会員限定で物件詳細を公開中
ログイン 新規会員登録

設備・条件

この物件を
お問い合わせする

物件リクエスト

お好みの居抜きオフィスが見つからなかった方はこちらから
リクエストをお送りください。
希望の条件からおすすめの居抜きオフィスをご紹介します。

居抜きオフィスを検索

該当件数

移転する予定がなくてもOK 今のオフィスを物件登録しませんか?

居抜き物件としてINUKIT!に登録しておくと、原状回復費用をグッと抑えることが可能です。
まだ移転の時期でなくても、早期登録しておけば、移転のタイミングで借り手がすぐに見つかる可能性が高くなります。
ぜひ、あなたのオフィスを居抜き物件として登録してください!

CONTACT

物件に関するご質問はお気軽にご相談ください。

お電話でのお問い合わせはこちら
0120-997-260

平日9:00~18:00

メールでのお問い合わせはこちら
お問い合わせフォーム