【渋谷エリア】閑静な場所にある落ち着いて働けそうな居抜きオフィス

内装写真
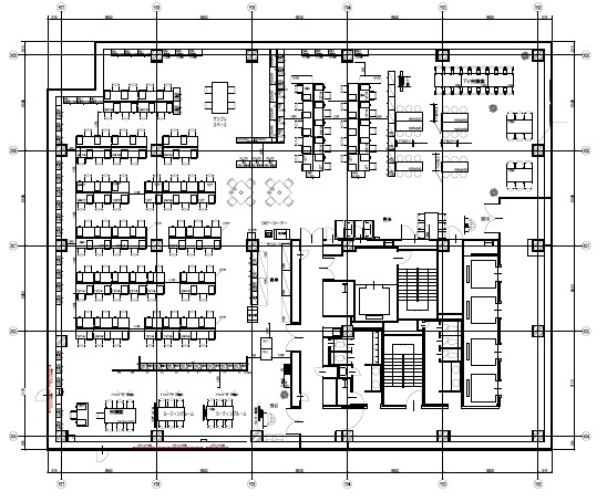
間取り図
地図
 
 
閲覧には会員登録が必要です
無料の会員登録ですぐにご覧になれます
エリア
東京都渋谷区
最寄り駅
山手線 渋谷駅徒歩9分
銀座線 表参道駅徒歩7分
千代田線 明治神宮前駅徒歩9分
副都心線 明治神宮前〈原宿〉駅徒歩9分
銀座線 外苑前駅徒歩19分
東横線 代官山駅徒歩24分
坪数帯
確認

物件説明

此方の物件は6駅5路線が利用可能。快適なアクセスが魅力的です。大通りから1歩離れたところにある為、集中して働けそうです。ガラス張りの特徴的な外観が存在感を演出します。鉄骨造で、エレベーターは6基、駐車場もあります。天井高2.6mで、トイレ男女別、機械警備の設備があります。おしゃれな飲食店も多数あるためランチにも困りません。

物件詳細情報

物件NoA-003843
住所東京都渋谷区
坪数帯確認
推奨人数100人以上
募集期間募集終了
坪単価-
竣工年-
賃料-
共益費-
敷金-
会員限定で物件詳細を公開中
ログイン 新規会員登録

設備・条件

物件リクエスト

お好みの居抜きオフィスが見つからなかった方はこちらから
リクエストをお送りください。
希望の条件からおすすめの居抜きオフィスをご紹介します。

物件リクエストフォーム

居抜きオフィスを検索

該当件数

移転する予定がなくてもOK 今のオフィスを物件登録しませんか?

居抜き物件としてINUKIT!に登録しておくと、原状回復費用をグッと抑えることが可能です。
まだ移転の時期でなくても、早期登録しておけば、移転のタイミングで借り手がすぐに見つかる可能性が高くなります。
ぜひ、あなたのオフィスを居抜き物件として登録してください!

CONTACT

物件に関するご質問はお気軽にご相談ください。

お電話でのお問い合わせはこちら
0120-997-260

平日9:00~18:00

メールでのお問い合わせはこちら
お問い合わせフォーム