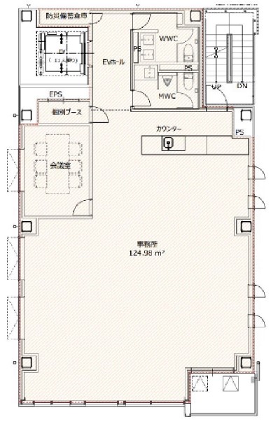
こちらのセットアップオフィスは、2023年に竣工したオフィスビルで、2駅3路線が利用可能です。最寄り駅からは徒歩約4分とアクセスが良好で、外観はガラス張り×ブラウン調でスタイリッシュな印象を与えます。屋上も付いており、気分転換しながら業務が可能です。天井は高めで開放感があり、オフィスフロアには会議室やワークスペースの他に、コミュニケーションスペースやキッチンスペースの前にカウンター席も設置されているため、貸室内でも気分転換ができます。恵比寿エリアでセットアップオフィスをお探しの方にはおすすめの物件です。



お好みの居抜きオフィスが見つからなかった方はこちらから
リクエストをお送りください。
希望の条件からおすすめの居抜きオフィスをご紹介します。
居抜き物件としてINUKIT!に登録しておくと、原状回復費用をグッと抑えることが可能です。
まだ移転の時期でなくても、早期登録しておけば、移転のタイミングで借り手がすぐに見つかる可能性が高くなります。
ぜひ、あなたのオフィスを居抜き物件として登録してください!
物件に関するご質問はお気軽にご相談ください。
平日9:00~18:00