【渋谷エリア】採光・解放感優れたコンパクト居抜きオフィス

内装写真
VR
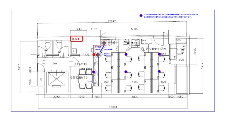
間取り図
地図
 
閲覧には会員登録が必要です
無料の会員登録ですぐにご覧になれます
渋谷エリア 居抜きオフィス
 
閲覧には会員登録が必要です
無料の会員登録ですぐにご覧になれます
エリア
東京都渋谷区
最寄り駅
千代田線 表参道駅徒歩6分
山手線 渋谷駅徒歩7分
銀座線 渋谷駅徒歩7分
京王井の頭線 渋谷駅徒歩7分
千代田線 明治神宮前駅徒歩14分
坪数帯
20坪未満

物件説明

おしゃれな飲食店や物販店が多く立ち並ぶ青山通り沿い、周辺には旧こどもの城や青山学院が有り、来客がある際にも説明しやすい立地です。
爽やかな青い外観が特徴のワンフロアワンテナントタイプのオフィスビルです。窓面が広く角地にあるため、貸室内は採光・解放感に優れております。
対象フロアのエレベーターホールは手が加えられており、ダウンライト、フローリングによって温かみのある空間が演出されています。貸室内はエレベーターホールと比較し、一面の青いアクセントクロスが特徴的な爽やかでメリハリのある内装です。応接や打ち合わせが可能な間仕切りがあるのに加え、什器も備わっているため、移転時のコスト、手間を抑えて、入居後すぐに業務が開始出来ます。コンパクトオフィスでは珍しく男女別トイレやエレベーター不停止機能等設備面も充実しておりスタートアップ企業や分室などに様々な企業や業種の方にお勧めです。

物件詳細情報

物件NoA-001909
住所東京都渋谷区
坪数帯20坪未満
推奨人数10人未満
募集期間募集終了
坪単価-
竣工年-
賃料-
共益費-
敷金-
会員限定で物件詳細を公開中
ログイン 新規会員登録

設備・条件

物件リクエスト

お好みの居抜きオフィスが見つからなかった方はこちらから
リクエストをお送りください。
希望の条件からおすすめの居抜きオフィスをご紹介します。

居抜きオフィスを検索

該当件数

移転する予定がなくてもOK 今のオフィスを物件登録しませんか?

居抜き物件としてINUKIT!に登録しておくと、原状回復費用をグッと抑えることが可能です。
まだ移転の時期でなくても、早期登録しておけば、移転のタイミングで借り手がすぐに見つかる可能性が高くなります。
ぜひ、あなたのオフィスを居抜き物件として登録してください!

CONTACT

物件に関するご質問はお気軽にご相談ください。

お電話でのお問い合わせはこちら
0120-997-260

平日9:00~18:00

メールでのお問い合わせはこちら
お問い合わせフォーム