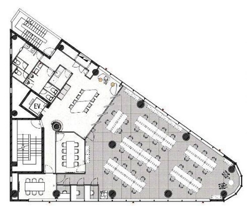
半蔵門エリアの道が交差した角地にあるセットアップオフィスになります。外観に関しましては、とにかく尖っており、視認性が良好です。内装に関しましては、従業員が落ち着くことの出来るラウンジスペースや集中できるテレフォンブースが設けられております。貸室は三面ガラス張りで採光が取れます。スケルトン天井なので開放感ある造りになっております。6名用会議室と8名用会議室がございまして、来客のお客様にも柔軟に対応できます。物件から少しほど歩けば駅周辺に着き、飲食店が多彩です。



お好みの居抜きオフィスが見つからなかった方はこちらから
リクエストをお送りください。
希望の条件からおすすめの居抜きオフィスをご紹介します。
居抜き物件としてINUKIT!に登録しておくと、原状回復費用をグッと抑えることが可能です。
まだ移転の時期でなくても、早期登録しておけば、移転のタイミングで借り手がすぐに見つかる可能性が高くなります。
ぜひ、あなたのオフィスを居抜き物件として登録してください!
物件に関するご質問はお気軽にご相談ください。
平日9:00~18:00