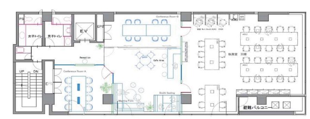
最寄駅から徒歩1分、且つ徒歩10分圏内には複数路線使用可能な駅があるのアクセス良好なセットアップオフィスです。アースカラーでまとめられた内装は、落ち着く雰囲気を演出できます。廊下は天井が吹き抜けになっており、天井高も2500mm以上なので、開放的な広々とした空間を感じられると思います。会議室が1部屋、ラウンジエリアもございます。設備面に関しましては、空調は個別空調、トイレは男女別、エレベーターは1基備わっております。



お好みの居抜きオフィスが見つからなかった方はこちらから
リクエストをお送りください。
希望の条件からおすすめの居抜きオフィスをご紹介します。
居抜き物件としてINUKIT!に登録しておくと、原状回復費用をグッと抑えることが可能です。
まだ移転の時期でなくても、早期登録しておけば、移転のタイミングで借り手がすぐに見つかる可能性が高くなります。
ぜひ、あなたのオフィスを居抜き物件として登録してください!
物件に関するご質問はお気軽にご相談ください。
平日9:00~18:00