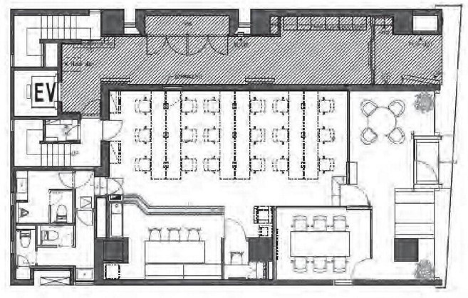
小伝馬町・三越前エリアにあるお洒落を求めたセットアップオフィスです。外観に関しましては、黒と灰色を基調にした落ち着きのある物件になります。貸室内に関しましては、白を基調としたワークスペースがあり、スケルトン天井になっているので開放感ある造りになっております。6名用会議室が1部屋ございまして、来客のお客様にも柔軟に対応できます。TELスペースも設けられております。物件から少しほど歩けば駅周辺に着き、飲食店が多彩です。




お好みの居抜きオフィスが見つからなかった方はこちらから
リクエストをお送りください。
希望の条件からおすすめの居抜きオフィスをご紹介します。
居抜き物件としてINUKIT!に登録しておくと、原状回復費用をグッと抑えることが可能です。
まだ移転の時期でなくても、早期登録しておけば、移転のタイミングで借り手がすぐに見つかる可能性が高くなります。
ぜひ、あなたのオフィスを居抜き物件として登録してください!
物件に関するご質問はお気軽にご相談ください。
平日9:00~18:00