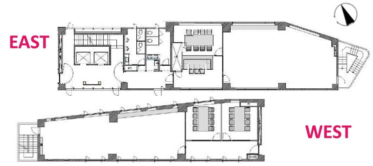
東京メトロ日比谷線「築地駅」より徒歩4分、東京メトロ有楽町線「新富町駅」より徒歩6分の所に位置するセットアップオフィスになります。ビル外観は重厚感のあるデザインとなっており、グレードの高いオフィスであるということが外からでも伺えるようになっています。貸室はEVホールを挟んで西側と東側にそれぞれ貸室があるようなデザインになっています。貸室内は非常にシンプルなものとなっており、幅広い業務の方に使っていただけるような仕様になっています。会議室も6名用のものが西側に2部屋、東側に1部屋用意があるため、すぐに業務に取り組んでいただけるようになっております。



お好みの居抜きオフィスが見つからなかった方はこちらから
リクエストをお送りください。
希望の条件からおすすめの居抜きオフィスをご紹介します。
居抜き物件としてINUKIT!に登録しておくと、原状回復費用をグッと抑えることが可能です。
まだ移転の時期でなくても、早期登録しておけば、移転のタイミングで借り手がすぐに見つかる可能性が高くなります。
ぜひ、あなたのオフィスを居抜き物件として登録してください!
物件に関するご質問はお気軽にご相談ください。
平日9:00~18:00