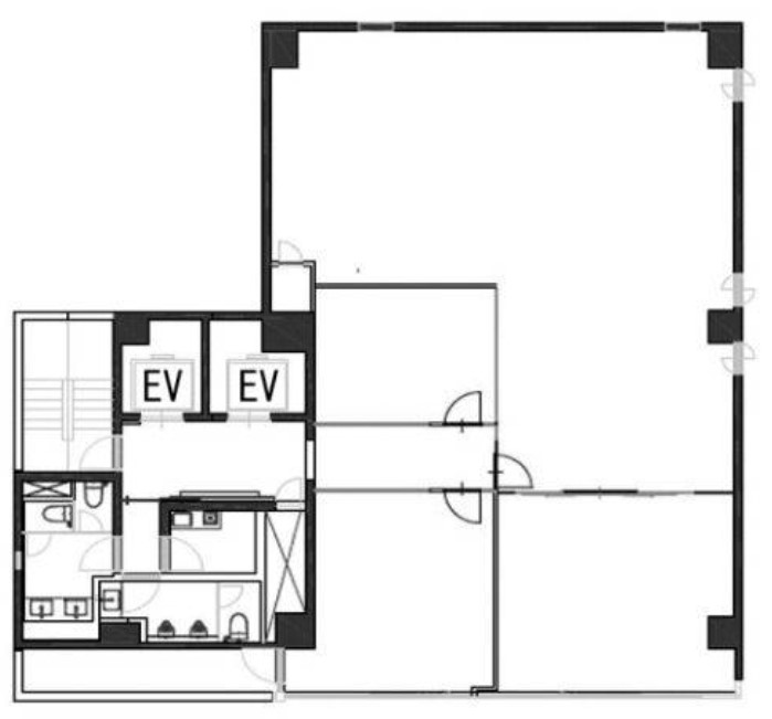
外観は白と黒、ガラスを基調とした格式の高い雰囲気を感じます。 貸室内は、ガラスで間仕切りをした会議室が2つ、執務スペース、8~12名様程度でご利用いただけるフレキシブルスペースが設けられています。 設備は、個別空調、OAフロア、エレベーター2基、男女別トイレ、機械警備となっております、エレベーターは不停止機能付きとセキュリティを気にされる方に喜んでいただけるかと思います。また2基あるため来客の多い業種も対応可能かと思います。




お好みの居抜きオフィスが見つからなかった方はこちらから
リクエストをお送りください。
希望の条件からおすすめの居抜きオフィスをご紹介します。
居抜き物件としてINUKIT!に登録しておくと、原状回復費用をグッと抑えることが可能です。
まだ移転の時期でなくても、早期登録しておけば、移転のタイミングで借り手がすぐに見つかる可能性が高くなります。
ぜひ、あなたのオフィスを居抜き物件として登録してください!
物件に関するご質問はお気軽にご相談ください。
平日9:00~18:00