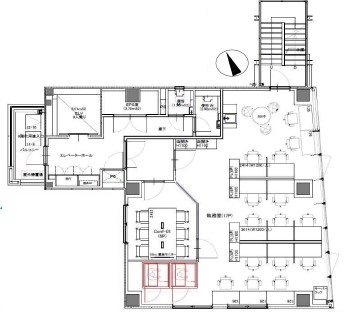
こちらのセットアップオフィス は、最寄り駅から徒歩3分、且つ徒歩10分圏内に駅が5駅ありアクセス良好な立地となっております。天井高3000mmで大きい窓があり解放感があり、採光も取れるので明るい室内となっております。内装はホワイト・木目・ブラックを基調とし、統一感があります。全体的に清潔感があり、落ち着いた雰囲気ですので、社員の方はもちろん来客の方にも印象の良いセットアップオフィスとなっております。12名分のパーソナルロッカー、モニター付きの6名用会議室も備えられております。


お好みの居抜きオフィスが見つからなかった方はこちらから
リクエストをお送りください。
希望の条件からおすすめの居抜きオフィスをご紹介します。
居抜き物件としてINUKIT!に登録しておくと、原状回復費用をグッと抑えることが可能です。
まだ移転の時期でなくても、早期登録しておけば、移転のタイミングで借り手がすぐに見つかる可能性が高くなります。
ぜひ、あなたのオフィスを居抜き物件として登録してください!
物件に関するご質問はお気軽にご相談ください。
平日9:00~18:00