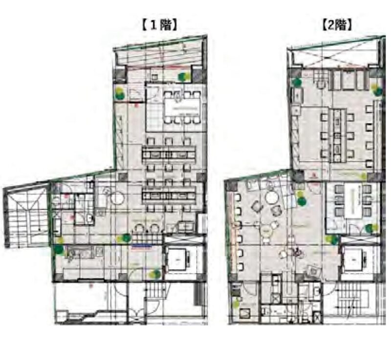
江戸通り沿いに面するセットアップオフィスで、3路線利用することができ、駅から3分圏内と好立地です。セットアップのため、ラウンジにはデスクやイスのほか、ソファが備わっており、ガラス張りの会議室にもデスクとイスが備わっています。ラウンジには、景色を眺めながら仕事をしたり仕事の合間にリフレッシュできるカウンター席もあります。貸室内に男女別のお手洗いが備わっているなど、働きやすいオフィスとなっています。また、エントランスにもソファーがあり、来客の際にも利用して頂けます。江戸通り沿いに面しており、窓から陽がよく入るため圧迫感のない造りとなっています。




お好みの居抜きオフィスが見つからなかった方はこちらから
リクエストをお送りください。
希望の条件からおすすめの居抜きオフィスをご紹介します。
居抜き物件としてINUKIT!に登録しておくと、原状回復費用をグッと抑えることが可能です。
まだ移転の時期でなくても、早期登録しておけば、移転のタイミングで借り手がすぐに見つかる可能性が高くなります。
ぜひ、あなたのオフィスを居抜き物件として登録してください!
物件に関するご質問はお気軽にご相談ください。
平日9:00~18:00