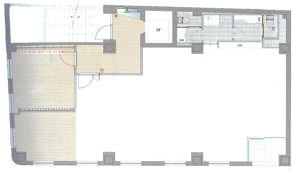
こちらのセットアップオフィスは複数の駅からアクセス可能で、各駅徒歩7分、徒歩9分で利用可能となっております。周辺には隅田川と公園があり自然にあふれた落ち着いた環境です。外観は大理石を基調とした上品さを感じさせる造形で8階建てのモダンなビルです。室内は二部屋に区切られており、ホワイトボードがあるため1区画は会議室としてもご利用可能です。木目調を取り入れた室内、設備は個別空調、コンパクトな専用の水回り、機械警備と充実しておりデザイン性と機能性を兼ね備えてます。




お好みの居抜きオフィスが見つからなかった方はこちらから
リクエストをお送りください。
希望の条件からおすすめの居抜きオフィスをご紹介します。
居抜き物件としてINUKIT!に登録しておくと、原状回復費用をグッと抑えることが可能です。
まだ移転の時期でなくても、早期登録しておけば、移転のタイミングで借り手がすぐに見つかる可能性が高くなります。
ぜひ、あなたのオフィスを居抜き物件として登録してください!
物件に関するご質問はお気軽にご相談ください。
平日9:00~18:00