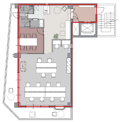
2023年5月に外観、エントランス、貸室など大規模リニューアル工事したセットアップオフィスです。ワンフロアワンテナントで使い勝手が良く、エントランスを入ると待合ラウンジがあります。丸テーブルや2名用の席がついているので、お客様にお待ち頂いたりそのまま軽い打合せも可能です。ガラス張りのパーテーションの6名用会議室も1室ついています。執務室スペースは集中ブースが2席ついていて、使いやすそうですよ。トイレや給湯室が執務室スペースの外にあるのも嬉しいPointです。また、徒歩10分圏内に複数駅・複数路線あるためアクセスも良好ですよ。※内装写真はイメージになりますので、一部変更の可能性もございます。


お好みの居抜きオフィスが見つからなかった方はこちらから
リクエストをお送りください。
希望の条件からおすすめの居抜きオフィスをご紹介します。
居抜き物件としてINUKIT!に登録しておくと、原状回復費用をグッと抑えることが可能です。
まだ移転の時期でなくても、早期登録しておけば、移転のタイミングで借り手がすぐに見つかる可能性が高くなります。
ぜひ、あなたのオフィスを居抜き物件として登録してください!
物件に関するご質問はお気軽にご相談ください。
平日9:00~18:00