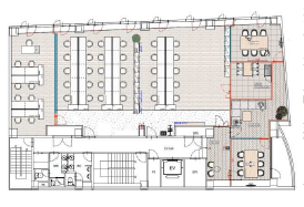
こちらのセットアップオフィスは、複数路線利用可能な最寄り駅から2分圏内でアクセス良好な立地となっております。エントランスは、アースカラーの落ち着いたモダンな雰囲気がございます。内装は大きな会議室が設けられていて、大人数の会議にもご利用可能です。空調は個別空調でトイレは男女別新耐震基準の物件となっております。天高は3mで大変開放感がございます。ワンフロアワンテナントの物件ですので、安全面も確保されております。



お好みの居抜きオフィスが見つからなかった方はこちらから
リクエストをお送りください。
希望の条件からおすすめの居抜きオフィスをご紹介します。
居抜き物件としてINUKIT!に登録しておくと、原状回復費用をグッと抑えることが可能です。
まだ移転の時期でなくても、早期登録しておけば、移転のタイミングで借り手がすぐに見つかる可能性が高くなります。
ぜひ、あなたのオフィスを居抜き物件として登録してください!
物件に関するご質問はお気軽にご相談ください。
平日9:00~18:00