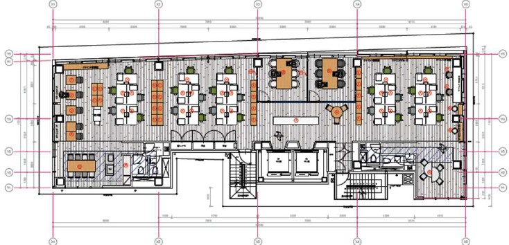
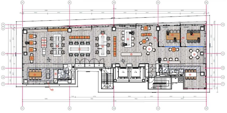
こちらのセットアップオフィスは4プランから選択可能で、お客様に注文頂いてから施行のため、内装は一部柔軟に相談可能です。どのプランも受付や会議室複数室、インナーテラス等がついております。柱・窓際の軒天に木を採用しており、シンプルで温かみのある雰囲気です。屋上テラスもご利用頂くことができ、東京スカイツリーが望め、リフレッシュも可能です。外装は緑が感じられ、洗練された雰囲気です。ロケーションは複数駅利用可能で、東京駅・神田駅・秋葉原駅・日本橋駅へも車で約10分で行くことが可能です。都営浅草線も利用可能で、羽田空港や成田空港へもアクセス良好です。※実際の什器・レイアウトは変更となる可能性がございます。




お好みの居抜きオフィスが見つからなかった方はこちらから
リクエストをお送りください。
希望の条件からおすすめの居抜きオフィスをご紹介します。
居抜き物件としてINUKIT!に登録しておくと、原状回復費用をグッと抑えることが可能です。
まだ移転の時期でなくても、早期登録しておけば、移転のタイミングで借り手がすぐに見つかる可能性が高くなります。
ぜひ、あなたのオフィスを居抜き物件として登録してください!
物件に関するご質問はお気軽にご相談ください。
平日9:00~18:00