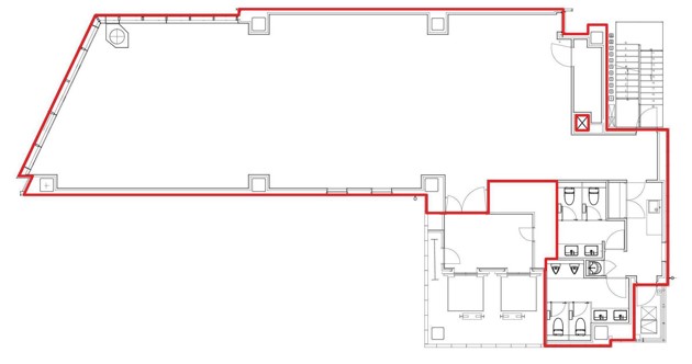
昭和通り沿い、4駅7路線が利用可能な好立地にあるビルです。街の景観に調和する白を基調とし、前面は全面ガラス張りのハイグレードかつスタイリッシュな独自の存在感を主張する外観です。エントランスは温かみのある木材を使用し、紺屋町の情景を再現した、自然に建物内部へと人を誘導するデザインとなっています。室内はモデルオフィスの居抜きのため、受付や執務室、会議室が完備され、機能性がありつつも緑を取り入れた、ご来客の方にも社員の方にもご満足いただけるおしゃれな内装となっています。




お好みの居抜きオフィスが見つからなかった方はこちらから
リクエストをお送りください。
希望の条件からおすすめの居抜きオフィスをご紹介します。
居抜き物件としてINUKIT!に登録しておくと、原状回復費用をグッと抑えることが可能です。
まだ移転の時期でなくても、早期登録しておけば、移転のタイミングで借り手がすぐに見つかる可能性が高くなります。
ぜひ、あなたのオフィスを居抜き物件として登録してください!
物件に関するご質問はお気軽にご相談ください。
平日9:00~18:00