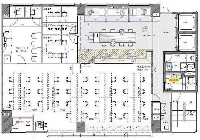
こちらのセットアップオフィスは、伝統ある神田神保町と水道橋エリアの間に位置する利便性の良い立地に、モダンで上質な佇まいのオフィスビルです。貸室内は、洗練された上品でインパクトのある空間を演出しております。 室内の天井解放することにより、執務室を、広く解放的な空間に造りこみ、インターナショナルなスペックにて、皆様をお出迎えしてくれます。必要に応じて、姿を変えるオフィススペース! ご来訪者様を迎える受付を備え、会議室の間仕切り等の設置を完了した状態にて、ご準備させていただきます。壁の位置から、扉の新設等、オフィスワーカーの使いやすさと、品質を追求した空間で、新たに生まれるクリエイティブなビジョンをご共有して頂ければ。



お好みの居抜きオフィスが見つからなかった方はこちらから
リクエストをお送りください。
希望の条件からおすすめの居抜きオフィスをご紹介します。
居抜き物件としてINUKIT!に登録しておくと、原状回復費用をグッと抑えることが可能です。
まだ移転の時期でなくても、早期登録しておけば、移転のタイミングで借り手がすぐに見つかる可能性が高くなります。
ぜひ、あなたのオフィスを居抜き物件として登録してください!
物件に関するご質問はお気軽にご相談ください。
平日9:00~18:00