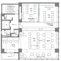
こちらのセットアップオフィスは、3駅8路線利用可能でいずれの駅からも徒歩10分圏内の好立地です。コンクリートの壁に木を使って温かみのある外観とは反対に、黒い床とコンクリート調のエントランスがスタイリッシュな空間を演出します。貸室内は、20名前後の事務所仕様となっております。来客用の会議室とミーティングスペースの2部屋があるため、ミーティングの多いお客様に最適です。会議室は、カーテンと遮音性に優れているため、安心して会議を行うことができます。



お好みの居抜きオフィスが見つからなかった方はこちらから
リクエストをお送りください。
希望の条件からおすすめの居抜きオフィスをご紹介します。
居抜き物件としてINUKIT!に登録しておくと、原状回復費用をグッと抑えることが可能です。
まだ移転の時期でなくても、早期登録しておけば、移転のタイミングで借り手がすぐに見つかる可能性が高くなります。
ぜひ、あなたのオフィスを居抜き物件として登録してください!
物件に関するご質問はお気軽にご相談ください。
平日9:00~18:00