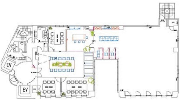
複数路線使用可能な最寄駅から徒歩5分圏内とアクセス良好な立地で、且つ昭和通り沿いにあって視認性が良いです。外観は重厚感ある造りになっております。2018年1月に全館、2022年6月に貸室内を大規模リニューアルしておりオシャレでデザイン性のある共用部や貸室内となっております。ラウンジスペースや個室ブース、応接スペースや会議室が複数あって様々な目的に沿って柔軟性のある使い方で仕事が出来ます。ラウンジスペースは天井が一部むき出しになっているので開放感があってリフレッシュも出来ます。オシャレな什器や家具も完備されておりすぐに業務を開始出来ます。



お好みの居抜きオフィスが見つからなかった方はこちらから
リクエストをお送りください。
希望の条件からおすすめの居抜きオフィスをご紹介します。
居抜き物件としてINUKIT!に登録しておくと、原状回復費用をグッと抑えることが可能です。
まだ移転の時期でなくても、早期登録しておけば、移転のタイミングで借り手がすぐに見つかる可能性が高くなります。
ぜひ、あなたのオフィスを居抜き物件として登録してください!
物件に関するご質問はお気軽にご相談ください。
平日9:00~18:00