


| 賃料 | 相談 |
|---|---|
| 共益費 | 相談 |
| 合計賃料 | 相談 |
| 預託金 | 相談 |
| 入居可能日 | 2026年04月 |
| 物件名 | GRC品川イノベーションパーク (ビルコード:50049) |
|---|---|
| 構造 | 鉄骨造 |
| 規模 | 地下1階地上18階建 |
| エレベーター | 11基 |
| 竣工 | 2004年08月 (新耐震基準ビル) |
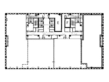
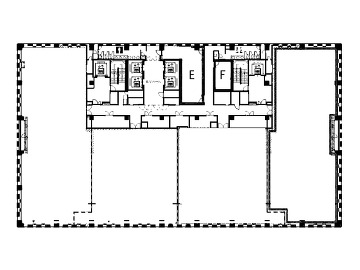
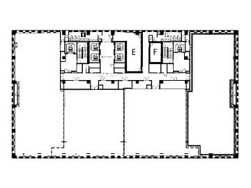
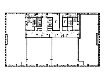
| 募集階数 | 14階 |
| 面積 | 8.52坪 |
| 所在地 | |
| 交通・アクセス | |
| 備考 | |
| 最終確認日 | 2026/02/13 |
天高2700mm
賃料・共益費・合計賃料には別途消費税がかかります。
募集状況は常時変動しているため、お問い合わせを頂いた時点でご紹介できない場合がございます。
フロアによって設備に違いがある場合がございます。
フロア賃料・ビル設備を含め賃貸借条件は貸主の事情により変更されている場合がございます。予めご了承下さい。
品川シーサイド駅直結ビル 羽田空港・品川駅のアクセス抜群 室内形状も良くレイアウトしやすいビルです。