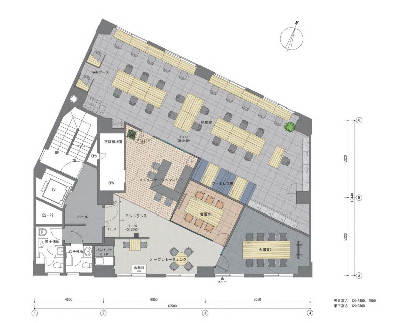
こちらのセットアップオフィスはエントランス、オープンミーティング、6名用会議室1室、8名用会議室1室、コミュニケーションエリア、ファミレス席執務室の造作があります。会議室にはモニターが付いていたり、執務室にはWebブースやロッカーやハイキャビネットなどもついていて使い勝手が良さそうです。内装は落ち着いた色を使用しており、集中してお仕事ができそうです。また、コミュニケーションエリアはハイカウンター4席あり、お洒落で会話も弾みそうです。ワンフロアワンテナントで、男女別トイレのため使い勝手が良さそうですよ。ロケーションもターミナル駅徒歩6分で複数路線利用可能なため、アクセス良好です。



お好みの居抜きオフィスが見つからなかった方はこちらから
リクエストをお送りください。
希望の条件からおすすめの居抜きオフィスをご紹介します。
居抜き物件としてINUKIT!に登録しておくと、原状回復費用をグッと抑えることが可能です。
まだ移転の時期でなくても、早期登録しておけば、移転のタイミングで借り手がすぐに見つかる可能性が高くなります。
ぜひ、あなたのオフィスを居抜き物件として登録してください!
物件に関するご質問はお気軽にご相談ください。
平日9:00~18:00