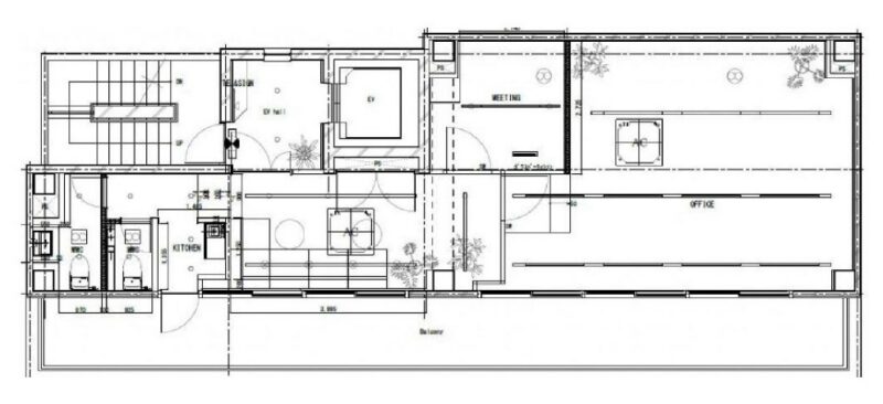
こちらのセットアップオフィスは、最寄り駅より徒歩6分とアクセス良好なオフィスビルです。エントランスはリニューアルされており、清潔感あるおしゃれなエントランスとなっています。周辺環境は駅から近いため、飲食店や買い物できるスポットも多く点在しています。ランチ時の飲食には困らない利便性の良い周辺環境です。ビルの設備としては、個別空調、機械警備、エレベーターが1基設置されています。男女別トイレなのも嬉しいポイントです。貸室内はコンパクトながらも使いやすい間取りです。池袋エリアでセットアップオフィスをお探しの方は、ぜひお問合せください。




お好みの居抜きオフィスが見つからなかった方はこちらから
リクエストをお送りください。
希望の条件からおすすめの居抜きオフィスをご紹介します。
居抜き物件としてINUKIT!に登録しておくと、原状回復費用をグッと抑えることが可能です。
まだ移転の時期でなくても、早期登録しておけば、移転のタイミングで借り手がすぐに見つかる可能性が高くなります。
ぜひ、あなたのオフィスを居抜き物件として登録してください!
物件に関するご質問はお気軽にご相談ください。
平日9:00~18:00