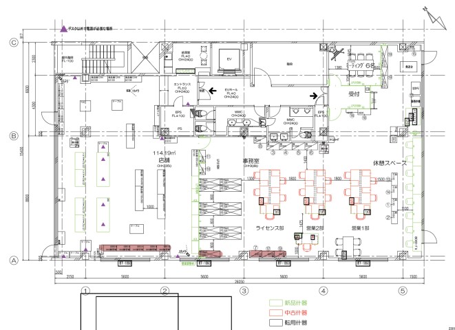
隅田川沿いに位置し、水景とスカイツリーを望める、希少なリバーフロントオフィスのご紹介です。本物件は1フロア1テナントの専有仕様となっており、他の入居者を気にせず、プライバシーと快適性を両立しています。整形かつ無柱設計のため、レイアウトの自由度が高く、ワークスペースの効率的な活用が可能。また、複数の路線が利用可能な好立地にあり、通勤や来客時のアクセスもスムーズです。社員の利便性を高めるロケーションも魅力です。デザイン性・機能性・立地すべてを兼ね備えた、希少な居抜きオフィス。浅草橋エリアでお探しの方はぜひご検討ください。




お好みの居抜きオフィスが見つからなかった方はこちらから
リクエストをお送りください。
希望の条件からおすすめの居抜きオフィスをご紹介します。
居抜き物件としてINUKIT!に登録しておくと、原状回復費用をグッと抑えることが可能です。
まだ移転の時期でなくても、早期登録しておけば、移転のタイミングで借り手がすぐに見つかる可能性が高くなります。
ぜひ、あなたのオフィスを居抜き物件として登録してください!
物件に関するご質問はお気軽にご相談ください。
平日9:00~18:00