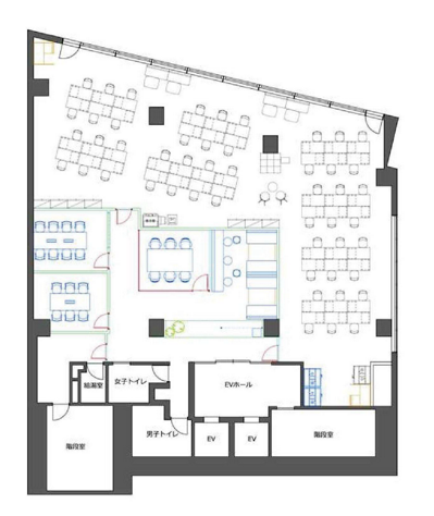
東京都新宿区北新宿に位置するセットアップオフィスのご紹介。最寄駅から近く都内主要エリアへのアクセスも良好な利便性の高い立地です。新宿エリアは国内外から多くの人々が集まる国際的な街で、近年は外国人居住者や訪問者も増加し多文化が交わる活気ある環境が形成されています。周辺には飲食店や歓楽街が充実しており、街全体が常にエネルギッシュでビジネスチャンスに恵まれています。本物件は家具や内装が整ったセットアップオフィスのため入居後すぐに業務を開始でき、成長や拠点拡大を目指す企業様に適した空間です。


お好みの居抜きオフィスが見つからなかった方はこちらから
リクエストをお送りください。
希望の条件からおすすめの居抜きオフィスをご紹介します。
居抜き物件としてINUKIT!に登録しておくと、原状回復費用をグッと抑えることが可能です。
まだ移転の時期でなくても、早期登録しておけば、移転のタイミングで借り手がすぐに見つかる可能性が高くなります。
ぜひ、あなたのオフィスを居抜き物件として登録してください!
物件に関するご質問はお気軽にご相談ください。
平日9:00~18:00