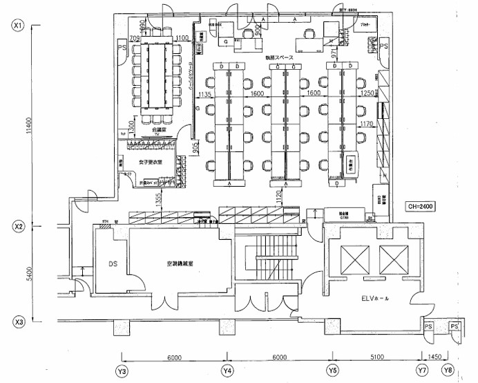
こちらの居抜きオフィスは最寄り駅から徒歩1分のアクセス良好な立地にございます。通りに面し、視認性も抜群です。グレーを基調としたシンプルな外観とエントランス。機械警備が備わり、24時間の利用も可能なため柔軟な働き方ができます。男女別トイレや個別空調も完備し、快適なオフィス環境が整っています。周辺にはコンビニや飲食店、銀行などがあり便利です。早稲田エリアで居抜きオフィスをお探しの方はぜひご検討ください。


お好みの居抜きオフィスが見つからなかった方はこちらから
リクエストをお送りください。
希望の条件からおすすめの居抜きオフィスをご紹介します。
居抜き物件としてINUKIT!に登録しておくと、原状回復費用をグッと抑えることが可能です。
まだ移転の時期でなくても、早期登録しておけば、移転のタイミングで借り手がすぐに見つかる可能性が高くなります。
ぜひ、あなたのオフィスを居抜き物件として登録してください!
物件に関するご質問はお気軽にご相談ください。
平日9:00~18:00