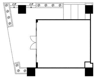
五反田エリア、マンションタイプのセットアップオフィスのご紹介です。最寄り駅から徒歩3分にありアクセス良好です。大通り沿いに面するため視認性にも優れています。マンションは鉄骨鉄筋コンクリート造で、エレベーター1基が備わっています。エントランスは石張り、ロビーは白を基調としており全体的に清潔感があります。室内の天井高は3.3mあり、開放感のある空間で快適にお過ごしいただけます。五反田エリアで居抜きオフィスをお探しの方はぜひご検討ください。


お好みの居抜きオフィスが見つからなかった方はこちらから
リクエストをお送りください。
希望の条件からおすすめの居抜きオフィスをご紹介します。
居抜き物件としてINUKIT!に登録しておくと、原状回復費用をグッと抑えることが可能です。
まだ移転の時期でなくても、早期登録しておけば、移転のタイミングで借り手がすぐに見つかる可能性が高くなります。
ぜひ、あなたのオフィスを居抜き物件として登録してください!
物件に関するご質問はお気軽にご相談ください。
平日9:00~18:00