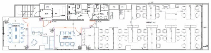
こちらのセットアップオフィスは、最寄り駅から徒歩8分です。複数路線利用可能な好立地にあります。ワンフロアワンテナントの物件なので、セキュリティー面も安心です。内装は木目調と白を基調とした、おしゃれで清潔感のある雰囲気です。天井はスケルトンで開放的になっております。備え付けの家具は、部屋ごとで異なり、様々なシーンに合わせてお使いいただけるのも魅力的です!窓面が大きく、採光も取れるので明るい室内です。男女トイレ別で給湯スペースの設置もございます。屋上テラスは入居者様の憩いの場としてご利用可能です。


お好みの居抜きオフィスが見つからなかった方はこちらから
リクエストをお送りください。
希望の条件からおすすめの居抜きオフィスをご紹介します。
居抜き物件としてINUKIT!に登録しておくと、原状回復費用をグッと抑えることが可能です。
まだ移転の時期でなくても、早期登録しておけば、移転のタイミングで借り手がすぐに見つかる可能性が高くなります。
ぜひ、あなたのオフィスを居抜き物件として登録してください!
物件に関するご質問はお気軽にご相談ください。
平日9:00~18:00