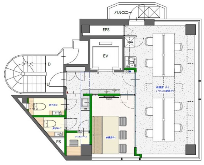
こちらのセットアップオフィスは、最寄り駅が複数路線商可能で、徒歩8分という立地にあります。駅のホームからも見えるほど視認性の良いビルとなっております。貸室内は6名掛け会議室・テレカンブース付、男女別トイレも完備しており、コンパクトなサイズながらも充実したレイアウトになっております。また、貸室は3面採光となっており、明るい室内で、開放感のある空間となっています。1階は館内テナント様専用の共有ラウンジとなっており、会議室やテレカンブースを設置予定です。



お好みの居抜きオフィスが見つからなかった方はこちらから
リクエストをお送りください。
希望の条件からおすすめの居抜きオフィスをご紹介します。
居抜き物件としてINUKIT!に登録しておくと、原状回復費用をグッと抑えることが可能です。
まだ移転の時期でなくても、早期登録しておけば、移転のタイミングで借り手がすぐに見つかる可能性が高くなります。
ぜひ、あなたのオフィスを居抜き物件として登録してください!
物件に関するご質問はお気軽にご相談ください。
平日9:00~18:00