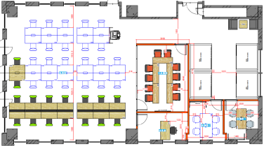
9路線が利用可能な、渋谷駅徒歩約2分に位置するワンフロア専有居抜きオフィスのご紹介です。約60坪のワンフロア専有ならではの自由さと、天高2.7mの開放感あふれる業務環境が魅力。メインの執務室は島型レイアウトが可能なゆとりある広さを確保し、統一感のあるグレーカーペットと白を基調とした内装が落ち着きを演出。会議室は2室設置されており、加えて多用途に利用可能なフリースペースも完備されています。執務エリア外には男女別トイレ、給湯室を備え、エレベーター不停止や機械警備とセキュリティ面も強く、安心してご利用いただけます。
居抜きでのお引渡しの場合、残置物は要協議となります。渋谷エリア徒歩2分、貴重な居抜きオフィスです。ぜひご検討ください。




お好みの居抜きオフィスが見つからなかった方はこちらから
リクエストをお送りください。
希望の条件からおすすめの居抜きオフィスをご紹介します。
居抜き物件としてINUKIT!に登録しておくと、原状回復費用をグッと抑えることが可能です。
まだ移転の時期でなくても、早期登録しておけば、移転のタイミングで借り手がすぐに見つかる可能性が高くなります。
ぜひ、あなたのオフィスを居抜き物件として登録してください!
物件に関するご質問はお気軽にご相談ください。
平日9:00~18:00