【渋谷エリア】最上階フロア専有!リノベセットアップオフィス

内装写真
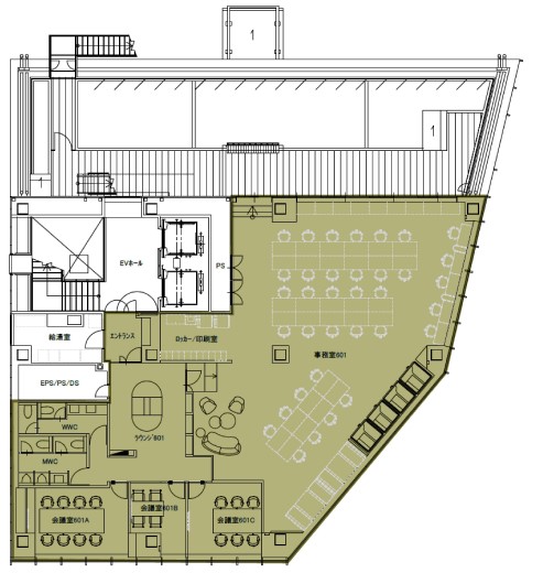
間取り図
地図
渋谷エリア セットアップオフィス
 
渋谷エリア セットアップオフィス
渋谷エリア セットアップオフィス
 
閲覧には会員登録が必要です
無料の会員登録ですぐにご覧になれます
エリア
東京都渋谷区
最寄り駅
京王井の頭線 神泉駅徒歩4分
埼京線 渋谷駅徒歩10分
山手線 渋谷駅徒歩10分
湘南新宿ライン 渋谷駅徒歩10分
井の頭線 渋谷駅徒歩10分
田園都市線 渋谷駅徒歩10分
東横線 渋谷駅徒歩10分
銀座線 渋谷駅徒歩10分
半蔵門線 渋谷駅徒歩10分
副都心線 渋谷駅徒歩10分
坪数帯
80~90坪

物件説明

最寄り駅から徒歩4分のハーフセットアップのご紹介です。1階および地下1階には、ご入居テナント様専用のラウンジを完備し、リフレッシュやカジュアルな打ち合わせにもご活用いただけます。室内には4名用1室・6名用1室・8名用1室、会議室があります。一部大理石や木目を基調とし、グレーやブラウンの落ち着いたカラーリングが空間全体に上質な雰囲気を醸し出します。また、スケルトン天井による抜け感が開放的な印象を演出。各フロアはデザインや面積が異なり、ニーズに応じた多様な選択肢をご用意しています。カフェやギャラリーが点在する落ち着いたエリアに立地しているため、創造性と集中力が求められる業種にもぴったりの環境です。駐車場もあり、車通勤の方にもおすすめです。

物件詳細情報

物件NoA-005093
住所東京都渋谷区
坪数帯80~90坪
推奨人数40~50人
募集期間ご成約まで
坪単価-
竣工年-
賃料-
共益費-
敷金-
会員限定で物件詳細を公開中
ログイン 新規会員登録

設備・条件

この物件を
お問い合わせする

物件リクエスト

お好みの居抜きオフィスが見つからなかった方はこちらから
リクエストをお送りください。
希望の条件からおすすめの居抜きオフィスをご紹介します。

居抜きオフィスを検索

該当件数

移転する予定がなくてもOK 今のオフィスを物件登録しませんか?

居抜き物件としてINUKIT!に登録しておくと、原状回復費用をグッと抑えることが可能です。
まだ移転の時期でなくても、早期登録しておけば、移転のタイミングで借り手がすぐに見つかる可能性が高くなります。
ぜひ、あなたのオフィスを居抜き物件として登録してください!

CONTACT

物件に関するご質問はお気軽にご相談ください。

お電話でのお問い合わせはこちら
0120-997-260

平日9:00~18:00

メールでのお問い合わせはこちら
お問い合わせフォーム