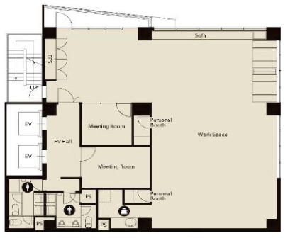
新築セットアップオフィスが、渋谷エリアに誕生しました。スケルトン天井と天高3.3mの開放的な空間は、洗練されたデザインと快適さを両立し、クリエイティブな働き方を後押しします。6名用・8名用の会議室に加え、気軽な打ち合わせに最適なMTGブースを2か所設置。さらに個室が2室あるため、集中作業や電話・オンラインミーティング対応の際に活用できます。専用Wi-Fiにより、ストレスのないIT環境が整っています。男女別トイレやパントリー、宅配ボックスといった共用設備も充実しており、利便性が高く、快適なオフィス環境です。また、顔認証による入退出管理システムを導入しており、セキュリティ面も安心です。トレンドとビジネスが交差する渋谷エリアは、企業のブランド価値を高め、取引先にも良い印象を与えることができるでしょう。渋谷エリアでセットアップオフィスをお探しの方はぜひご検討ください。


お好みの居抜きオフィスが見つからなかった方はこちらから
リクエストをお送りください。
希望の条件からおすすめの居抜きオフィスをご紹介します。
居抜き物件としてINUKIT!に登録しておくと、原状回復費用をグッと抑えることが可能です。
まだ移転の時期でなくても、早期登録しておけば、移転のタイミングで借り手がすぐに見つかる可能性が高くなります。
ぜひ、あなたのオフィスを居抜き物件として登録してください!
物件に関するご質問はお気軽にご相談ください。
平日9:00~18:00