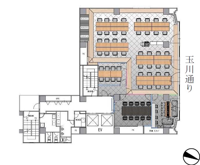
此方の物件は1駅7路線が利用可能。快適なアクセスが魅力的です。東京を象徴するようなロケーションは、ブランドイメージを高めてくれそうです。スタイリッシュで洗練された外観デザインが特徴です。現代的な建築美が際立つフォルムは、企業イメージを高めるのに最適です。大きな窓からは自然光がたっぷりと差し込み、明るく開放感のある雰囲気を演出しています。会議室が付いているため来客の多いお客様も安心して御利用いただけそうです。



お好みの居抜きオフィスが見つからなかった方はこちらから
リクエストをお送りください。
希望の条件からおすすめの居抜きオフィスをご紹介します。
居抜き物件としてINUKIT!に登録しておくと、原状回復費用をグッと抑えることが可能です。
まだ移転の時期でなくても、早期登録しておけば、移転のタイミングで借り手がすぐに見つかる可能性が高くなります。
ぜひ、あなたのオフィスを居抜き物件として登録してください!
物件に関するご質問はお気軽にご相談ください。
平日9:00~18:00