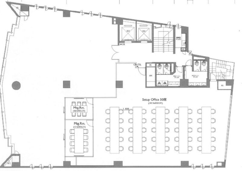
こちらのセットアップオフィスは執務室スペースにはフリーアドレス50席とホワイトボード、6名用会議室、8名用会議室がついています。内装はホウィトを基調としており、間仕切りがガラス張りのため洗練された雰囲気です。一部スケルトン天井のため、高さが3,300mmあり開放感があります。ターミナル駅より8分のため、通勤しやすいですし、外出や来客が多い企業様にもおすすめです。フロアは分割区画になり、男女別トイレが室外にあります。



お好みの居抜きオフィスが見つからなかった方はこちらから
リクエストをお送りください。
希望の条件からおすすめの居抜きオフィスをご紹介します。
居抜き物件としてINUKIT!に登録しておくと、原状回復費用をグッと抑えることが可能です。
まだ移転の時期でなくても、早期登録しておけば、移転のタイミングで借り手がすぐに見つかる可能性が高くなります。
ぜひ、あなたのオフィスを居抜き物件として登録してください!
物件に関するご質問はお気軽にご相談ください。
平日9:00~18:00