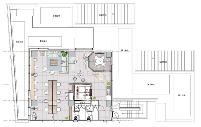
オシャレな物販店舗や飲食店舗が多く立ち並ぶ「奥渋」エリアに佇むオフィスビルです。外観は白を基調とした、清潔感・スタイリッシュさ・モダンを兼ね備えた装いとなっています。貸室内はアパレル店舗を思わせるような、ハーフスケルトン調のオシャレな内装仕上げになっています。また、見た目だけではなく、会議室の間仕切りやちょっとしたリラックススペース、什器等が設置されており、すぐに業務が開始でき、快適に働ける空間が演出されています。



お好みの居抜きオフィスが見つからなかった方はこちらから
リクエストをお送りください。
希望の条件からおすすめの居抜きオフィスをご紹介します。
居抜き物件としてINUKIT!に登録しておくと、原状回復費用をグッと抑えることが可能です。
まだ移転の時期でなくても、早期登録しておけば、移転のタイミングで借り手がすぐに見つかる可能性が高くなります。
ぜひ、あなたのオフィスを居抜き物件として登録してください!
物件に関するご質問はお気軽にご相談ください。
平日9:00~18:00