【三軒茶屋エリア】エントランスが視認性抜群なセットアップオフィス

内装写真
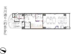
間取り図
地図
 
 
閲覧には会員登録が必要です
無料の会員登録ですぐにご覧になれます
エリア
東京都世田谷区
最寄り駅
東急田園都市線 三軒茶屋駅徒歩8分
東急田園都市線 池尻大橋駅10分
東急世田谷線 三軒茶屋駅10分
東急世田谷線 西太子堂駅15分
坪数帯
20~30坪

物件説明

こちらの物件は3駅2路線が利用可能で快適なアクセスが魅力的です。先進的なデザインの外観とガラス張りの美しいエントランスはブランドイメージを高めてくれそうです。貸室内は意匠性が高く開放感のある雰囲気です。受付やラウンジスペース(モニター付き)会議室が付いています。来客の多いお客様も安心して御利用いただけそうです。社員様はもちろんのこと来客のお客様にも好印象のセットアップオフィスなのではないでしょうか。近隣には、多彩な飲食店やカフェが立ち並び、ランチやミーティングにも便利です。



物件詳細情報

物件NoA-004398
住所東京都世田谷区
坪数帯20~30坪
推奨人数10~20人
募集期間ご成約まで
坪単価-
竣工年-
賃料-
共益費-
敷金-
会員限定で物件詳細を公開中
ログイン 新規会員登録

設備・条件

この物件を
お問い合わせする

物件リクエスト

お好みの居抜きオフィスが見つからなかった方はこちらから
リクエストをお送りください。
希望の条件からおすすめの居抜きオフィスをご紹介します。

物件リクエストフォーム

居抜きオフィスを検索

該当件数

移転する予定がなくてもOK 今のオフィスを物件登録しませんか?

居抜き物件としてINUKIT!に登録しておくと、原状回復費用をグッと抑えることが可能です。
まだ移転の時期でなくても、早期登録しておけば、移転のタイミングで借り手がすぐに見つかる可能性が高くなります。
ぜひ、あなたのオフィスを居抜き物件として登録してください!

CONTACT

物件に関するご質問はお気軽にご相談ください。

お電話でのお問い合わせはこちら
0120-997-260

平日9:00~18:00

メールでのお問い合わせはこちら
お問い合わせフォーム