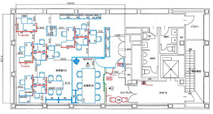
こちらの居抜きオフィスは、複数路線使用可能な最寄駅から徒歩5分以内でアクセス良好な立地となっております。ガラス張りのインパクトがある外装が特徴的で内装は白を基調としており、明るく清涼感を感じることができる室内となっております。また、ワークスペースとしての利用以外にも会議室・打合せスペースなど自由にレイアウトできる使い勝手の良い居抜きオフィスです。トイレは男女別で個別空調も完備しております。ワンフロアワンテナントの物件ですので、安全面もしっかりしているのもオススメポイントです!



お好みの居抜きオフィスが見つからなかった方はこちらから
リクエストをお送りください。
希望の条件からおすすめの居抜きオフィスをご紹介します。
居抜き物件としてINUKIT!に登録しておくと、原状回復費用をグッと抑えることが可能です。
まだ移転の時期でなくても、早期登録しておけば、移転のタイミングで借り手がすぐに見つかる可能性が高くなります。
ぜひ、あなたのオフィスを居抜き物件として登録してください!
物件に関するご質問はお気軽にご相談ください。
平日9:00~18:00