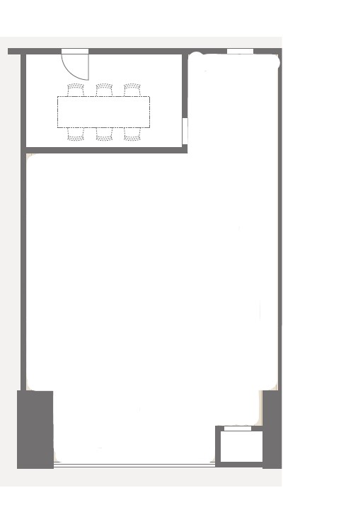
こちらのセットアップオフィス は、複数路線利用可能な 最寄り駅から徒歩1分圏内でアクセス良好な立地となっております。20坪のコンパクトなオフィスですが、6人用の会議室・打合せスペースが設置されています。全体的に木目とブラックを基調としていて、シックな雰囲気があり、業務にも集中できる環境が整えられているのではないでしょうか。共用部には男女別トイレがあり、OAフロアです。周辺環境も整っておりますので、ランチタイムは困らない便利な立地です。



お好みの居抜きオフィスが見つからなかった方はこちらから
リクエストをお送りください。
希望の条件からおすすめの居抜きオフィスをご紹介します。
居抜き物件としてINUKIT!に登録しておくと、原状回復費用をグッと抑えることが可能です。
まだ移転の時期でなくても、早期登録しておけば、移転のタイミングで借り手がすぐに見つかる可能性が高くなります。
ぜひ、あなたのオフィスを居抜き物件として登録してください!
物件に関するご質問はお気軽にご相談ください。
平日9:00~18:00