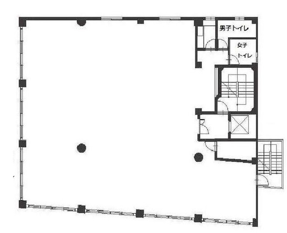
こちらの居抜きオフィスは、最寄り駅より徒歩4分で空港へのアクセスへも便利なオフィスビルです。そのため国内外への出張が多い企業様にもおすすめしたいオフィスビルです。エントランスはリニューアルされております。また貸室内は窓面が大きく、二面採光のため自然に光が入ってくるので明るい室内で業務に取り組めます。間取りは柱も少なく使いやすい間取りです。さらに男女別トイレなのも嬉しいポイントです。周辺環境は、コンビニや飲食店も点在しているのでランチ時の飲食も困らないので利便性の良い周辺環境です。ビルの設備はエレベーターが1基備わっており、上下階の移動もスムーズでストレスフリーでご利用いただけます。他にも機械警備も完備されていて、セキュリティー面でも安心です。さらに駐車場も完備されているので、車での来客や通勤が多い企業様にもご利用いただけます。




お好みの居抜きオフィスが見つからなかった方はこちらから
リクエストをお送りください。
希望の条件からおすすめの居抜きオフィスをご紹介します。
居抜き物件としてINUKIT!に登録しておくと、原状回復費用をグッと抑えることが可能です。
まだ移転の時期でなくても、早期登録しておけば、移転のタイミングで借り手がすぐに見つかる可能性が高くなります。
ぜひ、あなたのオフィスを居抜き物件として登録してください!
物件に関するご質問はお気軽にご相談ください。
平日9:00~18:00